Signed in as:
filler@godaddy.com
Signed in as:
filler@godaddy.com


Shane Sanderson founded Child Rescue International in 2012. He felt the call to international missions, specifically to orphan care, and eventually discovered the great need for a children's home in Santa Cruz del Quiche, Guatemala. At that time, there was no orphanage in the city. He teamed up with a local Guatemalan church, and Child Rescue was born.
Within the first two months he had sixteen children living at Casa de Mi Padre! Within a few years, more people were catching on to the vision and heart of the mission.

In 2016, the owner of the home we rent decided to sell it. Thus began Shane's dream of building a home created to meet the needs of the growing ministry!

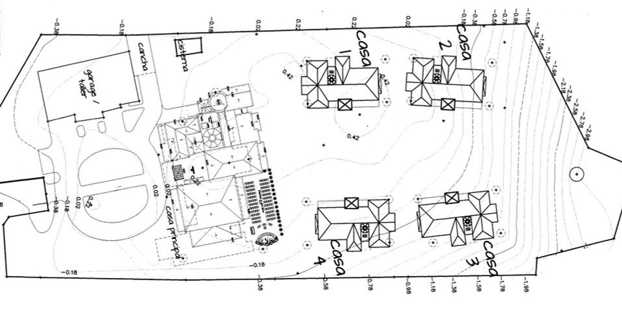
It's a slow process, but every day we are taking steps toward our future to make it a reality! Instead of having one large home, we plan to have a small village of four family-sized homes with a common house to take meals together and for school.
We will still function as one big family, but will also have small family units with house parents in each home. We are so excited about where the Lord is leading us! Will you join us in investing in the future of Case de Mi Padre and the future of the children we serve?

The main building will be set up with staff offices, a large dining room and kitchen for all the staff and children to eat meals together, and to house the director of operations and family. This space will allow all the children to be together for daily education, evening family devotions and celebrate life's many milestones.
The four family homes on site will allow house parents more individual time with the children and create a family style atmosphere for the children to grow and learn. The McCauley's are praying and working to raise funds to construct the last 2 family-sized homes on the new property of Casa de mi Padre. (Casa #3 and Casa #4 in image above)
















Casa de Mi Padre
Copyright © 2010-2026 | Child Rescue International, Inc. - Casa de Mi Padre | All rights reserved.
Child Rescue International, Inc. is a 501(c)(3) nonprofit organization. All donations are tax deductible in full or in part.
We use cookies to analyze website traffic and optimize your website experience. By accepting our use of cookies, your data will be aggregated with all other user data.